The Golden Field Haven
Floors
2
Bedrooms
5
Bathrooms
4.5
Garages
3
Total Sq. Ft.
9453
Price Range
$1.5M - $2M
Project description
Set amidst the windswept beauty of The Great Western community, The Golden Field Haven is a custom home where elegance meets enduring rural charm. With panoramic views of Taylor Mountain, this thoughtfully designed retreat invites you to slow down, breathe deep, and build a legacy. The home features a stunning palette of natural materials, all grounded by rustic timbers showcased in the gables. These timeless elements are complemented by soaring ceilings and windows that flood each room with natural light, framing the open fields and distant peaks. Designed for connection and comfort, the spacious layout accommodates large family gatherings, holidays, and everyday moments alike — making it a true sanctuary for building generational memories. A detached multi-use shop sits just beyond the home, supporting the lifestyle of those who value farming, hands-on work, or hobbies. The Golden Field Haven is a destination and a tribute to the beauty and possibility of the western lifestyle.
Key Details
- Build Time: 12+ months
- Ideal Lot Size: > 1 acre
- Number of Floors: 2, with a Basement
- Square Footage: 9453
- Amenities: Office, Covered Porches
Media
Features & Amenities
Office
Butler's Pantry
Kids Playroom
Covered Porches
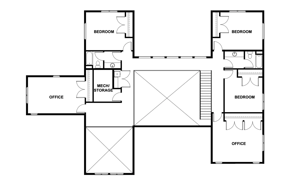
Details
TOTAL AREA SQ. FT.
9453
FIRST FLOOR SQ. FT.
3621
SECOND FLOOR SQ. FT.
2211
BASEMENT SQ. FT.
3621
GARAGE SQ. FT.
1051
PORCH SQ. FT.
576
BEDROOMS
4
BATHROOM
3
HALF BATHROOM
1
MAIN ROOF PITCHES
10/12
FEATURES
- Covered Porches
- Cold Storage
- Theater Room
- Fitness Center
- Kitchenette
- 2nd Laundry Room
- Mudroom
- Side Load Garage
- Bunk Room
- Office
- Butler’s Pantry
- Rec Room
- Kids Playroom
FLOORS
2
CEILING HEIGHTS
10′ & 21′ & Vaults
FOUNDATION
Basement
DISCLOSURES
This floor plan may not be suitable for all lot sizes or topographies. Modifications may be required for sloped, narrow, or irregularly shaped lots. Local zoning or HOA regulations may limit certain design elements such as building height or garage placement. All floor plans and elevations are conceptual purposes only. MDS Homes has the right to modify these plans without notice.
Location
Build Process
Building a home doesn’t have to feel overwhelming. At MDS, we’ve created a clear, step-by-step process that guides you from the first conversation to move-in day—with transparency, craftsmanship, and care at every stage.
